
/// 专 业 的 工 业 传 感 与 测 量 ///
/ 引言 /


图二 基本的扭矩传感器
随着导电滑环算是摩擦接触性性,因为无可杜绝地具备着刹车盘磨损高并发热,因为受限了选转轴的轉速及导电滑环的安全使用保修期。及随着接触性性无可靠性致使远程wifi网络信号灯灯动荡,因为会导致检测的精度大甚至是检测的不到功。想要避免导电滑环的异常现象,另一个说的是个方案能能说是所采用远程wifi电遥测的的步骤 :将扭距应力应变远程wifi网络信号灯灯在选转轴上面大相结行V/F转型成率远程wifi网络信号灯灯,能够 载波调配用远程wifi电散发的的步骤从选转轴上散发至轴外,用远程wifi电接收入的的步骤,就能能赢得选转轴受扭的远程wifi网络信号灯灯(见图三)。

图三
旋转轴上的能源供应是固定在旋转轴上的电池。该方法即为遥测扭矩仪。(见图四)遥测扭矩仪成功之处在于克服了电滑环的两项缺陷,但也存在着三个不足之处,其一:易受使用现场电磁波的干扰;其二:由于是电池供电,所以只能短期使用。其三:由于在旋转轴上附加了结构,易引起高转速时的动平衡问题。在小量程及小直径轴时更突出。数字式扭矩传感器吸取了上述各种方法的优点并克服了其缺陷,在应变传感器的基础上设计了两组旋转变压器,实现了能源及信号的非接触传递。并做到了扭矩信号的传递与是否旋转无关,与转速大小无关,与旋转方向无关。
图四
/ 特点 /
1.既可以测量静止扭矩,也可以测量旋转转矩。
2.检测精度高,稳定性好;抗干扰性强。
3.体积小,重量轻,多种安装结构,易于安装使用。
4. 不需反复调零即可连续测量正反转扭矩。
5. 没有导电环等磨损件,可以高转速长时间运行。
6. 传感器输出高电平频率信号可直接送计算机处理。
/ 测量原理 /
将用的测扭应力速率片用应力速率胶水贴在被测延展性轴上并组合应力速率桥 ,向应力速率桥具备外接电源就可以了测是该延展性轴受扭的电信网号。将该应变信号放大后,经过压/频转换,变成与扭应变成正比的频率信号。本系统的能源输入及信号输出是由两组带间隙的特殊环型变压器承担的,因此实现了无接触的能源及信号传递功能。(虚线内为旋转部分)(见图五)。
图五
/ 传感器原理结构 /
在那段私人定制的刚性轴上复制上专门的测扭应片并构造变桥,当以基础理论最大扭矩感测器器。
在轴上紧固着: (1)能源资源椭圆形电抗器的次级电磁铁;
(2)卫星警报环型电压器初快初级线圈;(3)轴上彩色印刷集成运放板,集成运放板上带有整流安全稳定电源开关、智能仪表变成集成运放、V/F切换集成运放及卫星警报伤害集成运放。在感知器的的外壳上固定不变着:(1)激磁电路;(2)能源环形变压器的初级线圈(输入);(3) 信号环形变压器次级线圈(输出);(4)信号处理电路。
/ 应用范围 /
1. 检测发电机,电动机 ,内燃机等旋转动力设备输出扭矩及功率。
2. 检测减速机,风机,泵,搅拌机,卷扬机,螺旋桨,钻探机械等设备的负载扭矩及输入功率。
3. 检测各种机械加工中心,自动机床的工作过程中的扭矩。
4. 各种旋转动力设备系统所传递的扭矩及效率。
5. 检测扭矩的同时可以检测转速,轴向力。
6. 可用于制造粘度计,电动(气动,液力)扭力扳手。
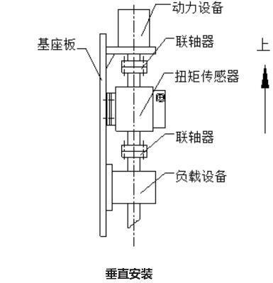
/ 安装使用 /
1. 使用两组联轴器,将传感器安装在动力源和负载之间。
2. 建议用挠性、弹性或万向节联轴器,以保证同心度 ∠ 0.1mm以下。
3. 动力及负载设备必须固定可靠避免振动。
4. 将本传感器的基座与设备的基座固定可靠,中心高须垫合适避免产生弯矩 。
/ 安装方式 /


1. 如果要求传动系统的轴向不因安装了传感器而加长,则可使用智能联轴器--既可以检测扭矩,又可以承担联轴器的功能。也就是一种带检测功能的联轴器。
2. 被测传动系统不允许加长但可以拆卸时,则可以使用套装式扭矩传感器--套在被测轴上即可测试。
3. 被测传动系统既不允许加长又不可以拆卸时,则可以使用在现场组装的卡装式扭矩传感器。从轴的两侧卡在轴上即可进行测试。即可长期监测也可短期检测。与电流钳形表相似。
4.有的测试系统既有扭力又有轴向力时则可以使用转矩转速轴向力三参数传感器;既可以避免轴向力对扭力测试的干扰又可以测量轴向力的信号。
5.在高转速或超高转速下测试时可以使用无轴承式转矩转速传感器。
6.如果被测系统为不旋转状态时可以使用扭矩传感变送器。
7.如果被测系统最大值在5mN·m至1N·m时可以使用小量程转矩转速传感器。

客户社会的微信公众号
机构斗音号
企业视頻号
企业主手机微博
中小企业小丽书